Project_No.001.html

Project No.001

設計編

施工編

05・基本設計

今回は、コンペの基本設計についてレポートします。


今回のコンペでは、作業期間が短いですが、結構な数の案を書きました。


その中で、ほぼ決定案を紹介致します。


この案は、 04・ 大まかなゾーニング  で記載していた


「中庭に向かう楽しい家」 の楽しみ方に徹した案です。

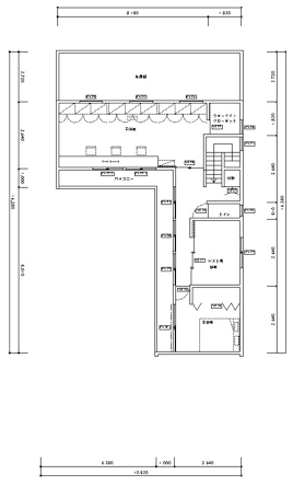
1階平面図

2階平面図

3階平面図

ゲスト用の駐車スペースを確保

広い中庭の一角に雨でも遊べるスペースを設けました

中庭とつながる広いオープンデッキ

周囲の住宅が2階建てなので南側の隣家に配慮しセットバックしました

一般的な住宅よりは大きな住宅です。


ゲストルームや趣味の部屋があることも特徴です。


ご主人の趣味のバス釣りや車がお好きの様なので、


ボクと気が合いそうで、非常に楽しみな計画です。


これから、模型を作るので、ボクがイメージした空間が表せると思います。




次回は、 06・ 模型づくり  です。

南側立面図

南側立面図

西側立面図

住まいの設計は   一級建築士事務所 Hirano S-A Laboratory   〒630-0243 奈良県生駒市俵口町950-1-203  URL : http://www.hirano-s-a-labo.com   e-mail : tomohisa@hirano-s-a-labo.com

トップtoppu.html
私たちの思いsitachino_sii.html
設計の流れshe_jino_liurefei_yong.html
事業内容shi_ye_nei_rong.html
耐震診断/耐震改修nai_zhen_zhen_duan_gai_xiu.html
プロフィールpurofiru.html
住宅・建築WORKSzhu_zhaijian_zhuWORKS.html
コンタクトkontakuto.html
リンクlink.html
Project fileProject_file.html
WEBを活用した住まいづくりWEBwo_huo_yongshita_zhumaidzukuri.html
サイトマップsaitomappu.html
S-A Labo日記 (Blog)S-A_Labo_Diary/S-A_Labo_Diary.html

住宅設計コンペ編

Project No.001 奈良県 香芝市 S邸 「中庭に向かう楽しい家」

・住宅設計コンペ 設計/施工 ナチュラルモダン 無垢材 CAR HOUSE

特徴:住宅設計コンペでの応募作品。中庭を本当に楽しむ為の住まい。Project_No.001.html